20 photos
flat
780.000 €
REF 7344223
1050 Ixelles
Available in November 2025
Bedrooms
2
Surface
154.6
Bathroom
1
Garage
No
Garden
No
Parking
No
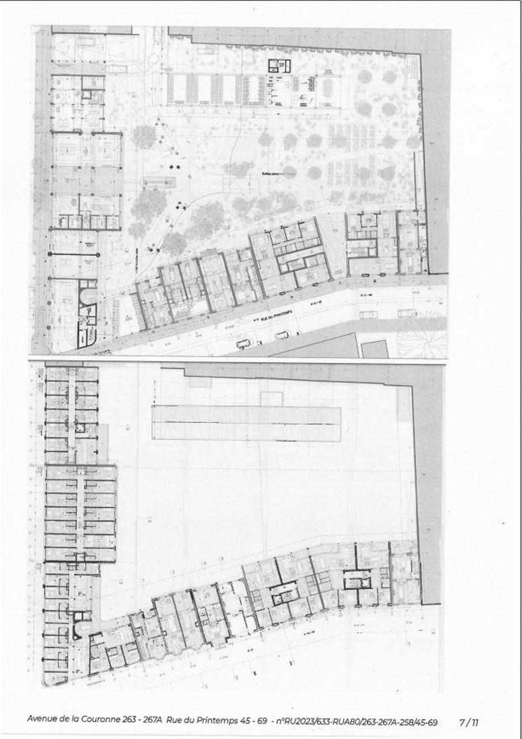
IXELLES - In the highly sought-after Cimetière d'Ixelles district (ULB, VUB, CHIREC, numerous shops and restaurants, train/tram/bus), beautiful 154.6 m² DUPLEX (2bed/1bath) with BALCONY and TERRACE. Located on the 1st and 2nd floors, it comprises on the 1st floor a dining room with super-equipped open-plan kitchen with central island opening onto the balcony, a bright living room opening onto the terrace overlooking the garden. The 2nd floor comprises two large bedrooms, a bathroom (double washbasin, bath, shower), separate WC and access to the attic. The entresol comprises a 19 m² cellar and a 15.4 m² multi-purpose room. The spacious, luxuriously finished apartment also borders a large, shared, south-facing CENTRAL GARDEN. Great attention is paid to the use of sustainable techniques and materials to meet the highest standards of energy performance (SOLAR PANELS, advanced insulation). Secure covered area for bicycles. Possibility of parking space at extra cost. Sale subject to 21% VAT. EPB C. Discover it at L&P !



















