25 photos
flat
570.000 €
REF 7258006
1050 Ixelles
Available in June 2026
Bedrooms
2
Surface
91
Bathroom
1
Garage
Yes
Garden
No
Parking
Yes
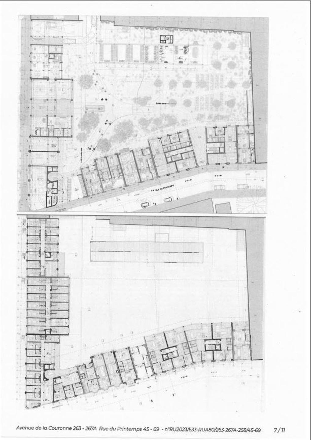
IXELLES - In the highly sought-after Cimetière d'Ixelles district (ULB, VUB, CHIREC, numerous shops and restaurants, train/tram/bus), beautiful NEW PENTHOUSE (2bed/1bath) of 91 m² with a lovely TERRACE. Located on the 3rd floor, it comprises an entrance hall with WC and utility room. A bright 33.6 m² living room with super-equipped open-plan L-shaped kitchen opening onto the south-east-facing terrace. Two beautiful bedrooms and a bathroom (washbasin, bath). The luxuriously finished flat borders a large, south-facing, shared central GARDEN. Great attention has been paid to using sustainable techniques and materials to meet the highest standards of energy performance (GEOTHERMAL ENERGY, HEAT PUMP, SOLAR PANELS, advanced insulation). Underground parking spaces and a secure covered area for bicycles. Cellar included and additional parking. Sale subject to 21% VAT (possibility of 6% VAT subject to conditions!). EPB A+. To discover at L&P !
























