21 photos
flat
244.000 €
REF 5704992
5100 Jambes
Available in April 2024
Bedrooms
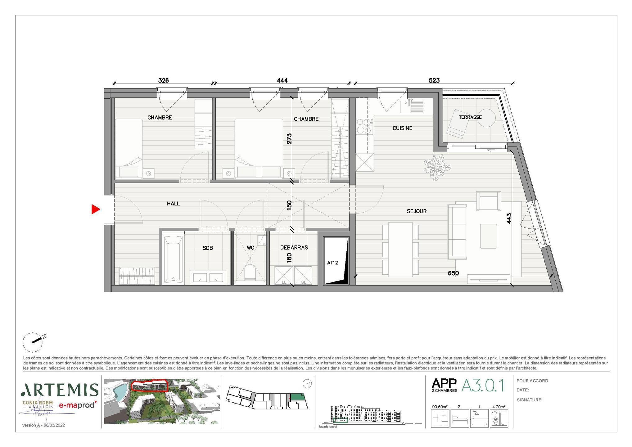
2
Surface
90.6 m²
Bathroom
1
Garden
No
Parking
Yes
JAMBES, à proximité de toutes les facilités, bel APPARTEMENT (2ch/1sdb) neuf de 90,60 m² avec terrasse. Hall d'entrée, wc, séjour de 26 m² avec accès à la terrasse de 4,20 m², cuisine équipée de 4,65 m², buanderie, hall de nuit, salle de bain, 2 chambres, chauffage individuel au gaz, châssis double vitrage en alu. Electricité bi-horaire. Parking intérieur et une cave en sus. Ascenseur, ventilation simple-flux, vidéophone. Idéalement situé à proximité du centre-ville, des commerces, des transports, etc. Livraison prévue en mars 2024. PEB provisoire "B". A découvrir chez L&P.




















