18 photos
appartement
213.000 €
REF 5705036
5100 Jambes
Disponible en avril 2024
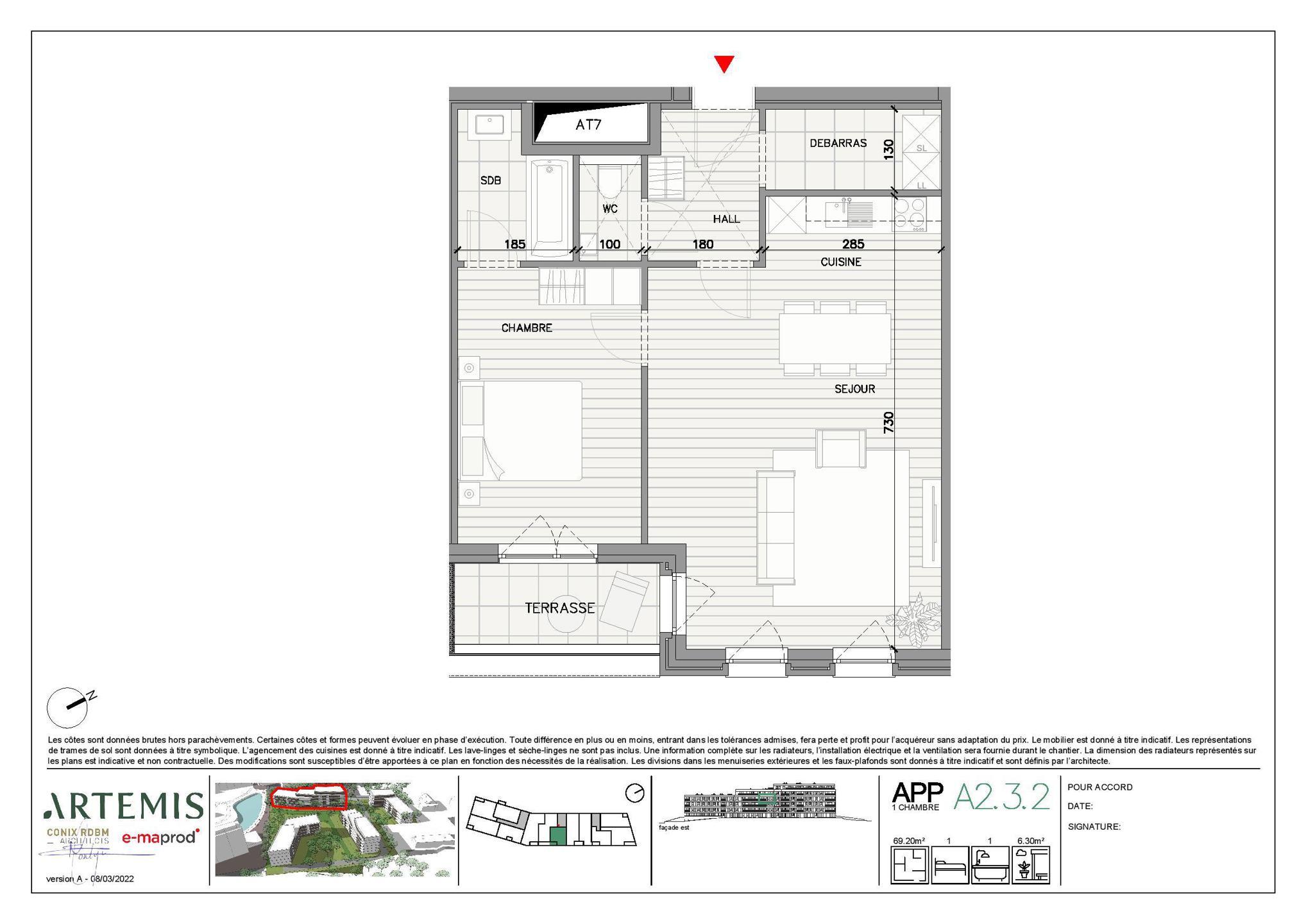
Chambre
1
Surface
69.2 m²
Salle d'eau
1
Jardin
Non
Parking
Oui
JAMBES, à 5 min du centre de Namur, dans un écrin de verdure, bel appartement contemporain (1CH/1SDB) 69,20 m² situé au 3ème étage de la résidence « ARTEMIS ». Il se compose d’une buanderie, d’un beau séjour de 31 m² avec cuisine ouverte donnant accès à la terrasse de 6,30 m², un hall de nuit, une salle d’eau et de 1 chambre. Vue verdoyante et dégagée. Châssis double vitrage en alu, Excellente isolation acoustique et thermique, ventilation simple flux, chauffage individuel au gaz, ascenseur, vidéophone. Parking et cave en sus. A proximité immédiate du centre-ville, de 2 gares et de 3 axes routiers majeurs. Livraison mars 2024. PEB provisoire "A". A découvrir chez L&P.

















