25 photos
appartement
550.000 €
REF 7257911
1050 Ixelles
Disponible en juin 2026
Chambres
2
Surface
91
Salle d'eau
1
Garage
Oui
Jardin
Non
Parking
Oui
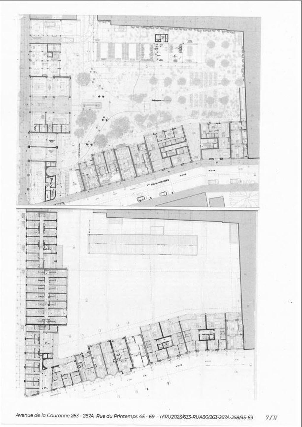
IXELLES - dans le très prisé quartier du Cimetière d’Ixelles (ULB, VUB, CHIREC, nombreux commerces et restaurants, train/tram/bus), magnifique APPARTEMENT NEUF (2ch/1sdb) de 91 m² avec une belle TERRASSE. Situé au premier étage, il se compose d'un hall d'entrée avec WC et buanderie. Un living lumineux de 33,6 m² avec cuisine ouverte super-équipée en L s'ouvrant sur la terrasse orientée sud-est. Deux belles chambres et une salle de bain (lavabo, bain). L'appartement aux finitions luxueuses borde un grand JARDIN central partagé, orienté sud. Une grande attention est portée à l'utilisation de techniques et matériaux durables pour répondre aux meilleurs standards de performance énergétique (GEOTHERMIE, POMPE A CHALEUR, PANNEAUX SOLAIRES, isolation poussée). Emplacements de parking souterrain et espace couvert sécurisé pour vélos. Cave comprise et parking en supplément. Vente sous régime TVA 21% (possibilité de TVA à 6% sous conditions !). PEB A++. A découvrir chez L&P !
























